Application
NSW2 series” anxele”brand Air circuit breaker is applicable for distribution network of AC/DC 50/60Hz,rated voltage of 400V and 690V, and rated current of 200A~ 8000A,to distribute electric energy protection circuit and prevent power equipments from harm of overload, under-voltage, short circuit andsingle-phase earth etc. Provided with intelligent protecting function and precise selective protective, breaker can enhance the dependability of power supply and avoid unwanted power cut.
Model and meaning

Structure of circuit breaker

Technical specification
Circuit breaker rated current
| Frame size rated current Inm (A) | Rated current In A |
| 1000 | 200、400、630、800、1000、1250 |
| 1600 | 1000、1250、1600 |
| 3200 | 1600、2000、2500、2900、3200 |
| 4000 | 3200、3600、4000 |
| 8000 | 4000、6300、7500、8000 |
□Circuit breaker rated short-circuit breaking capacity and rated short-time withstand current, Arcing- over distance is zero.
| Frame size rated current Inm (A) | 1000 | 1600 | 3200 | 4000 | 6300 | 8000 | |
| Rated limit short-circuit breaking capacity Icu (KA) O-CO |
400V | 65 | 85 | 100 | 100 | 120 | 150 |
| 690V | 42 | 50 | 65 | 65 | 80 | 85 | |
| Rated operating short-circuit breaking capacity Icu (KA) O-CO |
400V | 50 | 50 | 65 | 65 | 80 | 120 |
| 690V | 40 | 40 | 50 | 50 | 70 | 85 | |
| Rated operating short-circuit breaking capacity Icu (KA) O-CO |
400V | 50 | 50 | 65 | 65/80(MCR) | 85/100(MCR) | 85/120(MCR) |
| 690V | 40 | 40 | 50 | 50/65(MCR) | 65/75(MCR) | 75/85(MCR) | |
| Note: last hour line and next enter line of breaking capacity in the table are the same. | |||||||
Earthing fault
Largest loss-power of the breaker is 360W. Breaker’s rated continuous current changes under different conditions.
| Temperature℃NSW1 | 400A | 630A | 800A | 1000A | 1250A | 1600A | 2000A |
| 40 | 400A | 630A | 800A | 1000A | 1250A | 1600A | 2000A |
| 50 | 400A | 630A | 800A | 1000A | 1250A | 1550A | 1900A |
| 60 | 400A | 630A | 800A | 1000A | 1250A | 1550A | 1800A |
| Note: 2500A or above derating factor is 0.9, including 4000A none-derating among 6300A. | |||||||
Intelligent over-current controller protection characteristic and function
Over-current controller protection feature
a.Controller’s setting value Ir (I/ In) and accuracy
| Long-delay | Short-delay | Instantaneous | arthingfault | ||||
| Ir1 | Ir2 | Accuracy | Ir3 | Accuracy | Accuracy | ||
| (0.4-1)In | (0.4-15)In | ±10% | In~50KA(Inm=200A) In~75KA(Inm=3200~4000A) In~100KA(Inm=6300A)In~150KA(Inm=8000A) |
±15% | Inm=2000~4000A(0.2~0.8) InMax.1200AMin.160A |
Inm=6300A(0.2-1.0)In | ±10% |
| Note:when required three-section protection at the same time,setting values can’t intercross. | |||||||
b.Long time delay overcurrent protection characteristics I2TL=(1.5Ir1) 2 tL Operative time of (1.05~2.0)Ir1 view table below, time accuracy
is ±15%.
Note: tL- long time delay setting for 1.5 Irs, TL- long time delay operative time
c.Short time delay over-current protection characteristic
d.Short time delay over-current protection is with fixed time setting. When inverse time limit is required to be low multiples, its characteristic
should according to I2Ts=(8Ir1) 2 ts, ts is for common delay time setting; when pver load current >8 Ir1 , automatically changes to fixed
time setting characteristic, its characteristic view table below, time accuracy is ±15%.
| Delay time(s) | Returnable time(s) | ||||||
| 0.1 | 0.2 | 0.3 | 0.4 | 0.06 | 0.14 | 0.23 | 0.35 |
d.over-current protection characteristic view graph1,earthing fault protection characteristic view graph2.
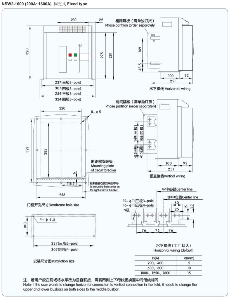
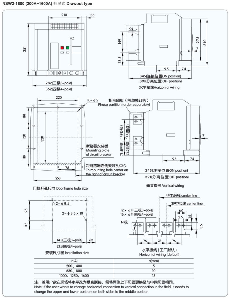
Shape mounting dimensions

…

English
简体中文
RU
PT





